
Planejamento estratégico para içamentos seguros e eficientes. Tecnologia e expertise técnica a serviço da sua movimentação de carga.
Movimentamos o que impulsiona o seu negócio. Força, técnica e segurança no transporte de cargas pesadas em toda a região.

Soluções inteligentes para movimentação de cargas leves e pesadas. Expertise técnica e equipamentos modernos para garantir agilidade e segurança operacional em qualquer cenário.

Nossa logística não encontra fronteiras. Soluções completas de transporte fluvial para levar sua carga com segurança por todos os caminhos da Amazônia.

Equipamentos de alta capacidade para carga e descarga de containers. Força bruta e controle preciso para dinamizar sua logística de pátio e porto.
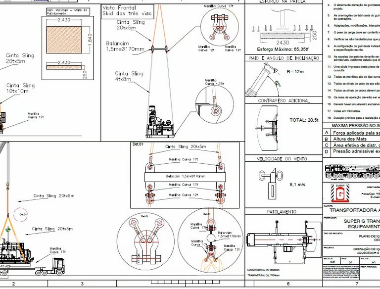
Movimentação interna de equipamentos pesados e sensíveis em espaços restritos. Tecnologia e força manual especializada para posicionar sua carga onde as máquinas convencionais não chegam

Execução completa de desmontagem, transporte e montagem para o mercado de óleo e gás. Expertise técnica e robustez operacional para garantir um Rig Move eficiente, seguro e dentro do cronograma.

Agilidade no transbordo e manejo de cargas em áreas alfandegadas e terminais. Equipamentos modernos e logística integrada para garantir que sua carga nunca pare.

Capacidade máxima para cargas de grande comprimento. Tecnologia em extensivos para o transporte seguro de estruturas indivisíveis e componentes industriais gigantes.

Suporte 24 horas para movimentação de carga e montagem industrial em paradas programadas. Força operacional e planejamento para garantir a continuidade do seu projeto de refino.

Movimentação de carga em espaços restritos com guindastes de alta manobrabilidade. Precisão técnica para posicionar sua máquina exatamente onde ela precisa estar.

Do asfalto ao rio, a força que movimenta o seu projeto. Soluções integradas de transporte para levar sua carga a qualquer lugar da região.




Transformamos o terreno para dar vida ao seu empreendimento. Com uma frota robusta de máquinas da Linha Amarela, oferecemos soluções completas em terraplanagem e infraestrutura. Do nivelamento à compactação, garantimos a preparação ideal do solo com a força e a eficiência que o seu projeto exige.